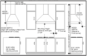
The most common stove width is 30 inches, and most stoves are 36 inches high so they are flush with the standard kitchen counter height. The standard stove depth is 25 inches, but oven door handles... A backsplash and control panel resides behind the cooking burners on many range models, and this panel adds another several inches to the stove's overall height. Most control panels are between 8 and 10 inches high, but some are higher. The typical overall range height for a unit with the back panel is 45 to 47 inches. A stove, commonly marketed as a range,
Source: nytimes.com Why Do I Need A Double Oven Range? Wirecutter Source: homeguides.sfgate.com Standard Kitchen Stove Dimensions Source: subzero-wolf.com 30" Gas Range Gr304 Wolf Rangetop Source: firstinarchitecture.co.uk Metric Data 09 Kitchen Standard Sizes First In Architecture Source: sebringdesignbuild.com Kitchen Cabinet Sizes And Specifications Guide Home Remodeling Contractors Sebring Design Build Source: kitease.com Range Hood Height Above The Stove Explained Source: prolinerangehoods.com Range Hood Size Definitive Guide Source: kitchenindex.ie Eye Level Oven Height Ideal Heights Off Floor Kitchen Index Blog Source: pinterest.com Standard Height For Kitchen Cabinets Kitchen Ideas In 2020 Kitchen Cabinet Sizes, Kitchen Cabinets Height, Kitchen Cabinet Dimensions Source: magnificentkitchens.com Standard Vs. Full Backsplash: What To Choose? The Kitchen Center Of Framingham Source: leisurecooker.co.uk Range Cooker Sizes Find The Perfect Fit Leisure Source: dimensions.com Stove Range Clearances Dimensions & Drawings Dimensions.Com Source: pinterest.com Aside From The Height Of Users, The Standard Measurements Can Be Used To Tailor Fit The Kitchen Island Bar Height, Kitchen Island Dimensions, Kitchen Island Bar Source: jlconline.com Kitchen & Bath: Finding A Home For The Microwave Jlc Online Source: thespruce.com Overview Of Ikea'S Kitchen Base Cabinet System Source: kitchinsider.com The Complete Guide To Standard Kitchen Cabinet Dimensions Source: dimensions.com Kitchen Ranges Ovens Stoves Dimensions & Drawings Dimensions.Com Source: chamberstoves.net Exclusive Features Of A Chambers Range! Source: prolinerangehoods.com Range Hood Mounting Height (Complete Guide) Source: blog.bellinghamelectric.com Stove Sizes Typical Range Dimensions & Other Factors To Consider Source: dimensions.com Kitchen Ranges Ovens Stoves Dimensions & Drawings Dimensions.Com Source: houzz.com Height Above Gas Range Should The Vent Hood Be? Source: thoughtco.com The Optimal Kitchen Countertop Height Source: remodelista.com Remodeling 101: What To Know When Replacing Your Range Remodelista Source: sebringdesignbuild.com Kitchen Cabinet Sizes And Specifications Guide Home Remodeling Contractors Sebring Design Build Source: tolucagranite.net Granite Countertop Height For Slide In Range: Getting Ready For Granite Source: rethority.com Kitchen Stove Sizes Complete Guide Rethority Source: abbaka.com Abbaka Sizing Your Abbaka Range Hood Source: firstinarchitecture.co.uk Metric Data 09 Kitchen Standard Sizes First In Architecture Source: mountainhighappliance.com Prg366Wh Thermador 36 Inch Pro Harmony Standard Depth Gas Range Mountain High Appliance Mountain High Appliance Source: bobvila.com The Standard Countertop Height And When Follow It, Solved! Bob Vila Source: renomart.com.au Standard Dimensions For Australian Kitchens (Illustrated) Renomart Source: tolucagranite.net Granite Countertop Height For Slide In Range: Getting Ready For Granite Source: homeguides.sfgate.com About The Standard Dimensions For Kitchen Cabinets Source: appliancesizes.com Us Standard Sizes For Ranges Source: blog.buildllc.com Design Strategies For Kitchen Hood Venting Build Blog Source: rtawoodcabinets.com What Are The Standard Sizes Of Kitchen Cabinets And Appliances? Rta Wood Cabinets Source: regattaexports.com Kitchen Ergonomics And Height Of Your Marble Countertop Source: pinterest.com Perfect Kitchen Cabinet Height Above Gas Stove And Description In 2020 Kitchen Cabinets Height, Replacement Kitchen Cabinet Doors, Kitchen Hoods Source: leisurecooker.co.uk Range Cooker Sizes Find The Perfect Fit Leisure Source: homedepot.com How To Install A Range Hood The Home Depot Source: remodelista.com Remodeling 101: How To Choose Between A Range Or A Cooktop And Wall Oven In The Kitchen Remodelista Source: bobvila.com Upper Cabinet Height For Kitchens, Solved! Bob Vila Source: livspace.com Standard Measurements To Design Your Kitchen Source: designerappliances.com 7 Best Ranges Of 2020 Top Stoves Reviewed Source: tolucagranite.net Granite Countertop Height For Slide In Range: Getting Ready For Granite Source: blog.bellinghamelectric.com Stove Sizes Typical Range Dimensions & Other Factors To Consider Source: glenindia.com Buy Glen 1032 Gt 3 Burner Gas Stove Online At Low Price In India Source: bobvila.com The Standard Countertop Height And When Follow It, Solved! Bob Vila Source: chamberstoves.net Exclusive Features Of A Chambers Range! Source: homedepot.com Best Kitchen Cabinets For Your Home The Home Depot Source: bobvila.com The Kitchen Island Size That'S Best For Your Home Bob Vila Source: thespruce.com Guide To Standard Kitchen Cabinet Dimensions Source: firstinarchitecture.co.uk Metric Data 09 Kitchen Standard Sizes First In Architecture Source: dimensions.com Kitchen Ranges Ovens Stoves Dimensions & Drawings Dimensions.Com Source: pinterest.com Pin On Home Guides Source: pinterest.com.mx Heights For Range Hood Kitchen Measurements, Kitchen Renovation, Kitchen Hoods Source: auberhalb.co Astounding Cooker Hood Dimensions Appealing Range Height Regulations Kitchen Sizes Oven Width Chimney Stove Home Improvement Standard Measurements Auberhalb Source: worldcoppersmith.com How Far Should A Range Hood Be Installed Over Your Cooktop? Source: dimensions.com Kitchen Ranges Ovens Stoves Dimensions & Drawings Dimensions.Com Source: kitchenstovenewotetsuki.blogspot.com Kitchen Stove New: Kitchen Stove Standard Size Source: dimensions.com Kitchen Ranges Ovens Stoves Dimensions & Drawings Dimensions.Com Source: blog.yaleappliance.com How High Do You Hang A Range Hood? Source: naturalhandyman.com Install An Over The Range Microwave Oven Source: subzero-wolf.com 36" Gas Range 6 Burners (Gr366) Wolf Rangetop Source: prolinerangehoods.com Range Hood Mounting Height (Complete Guide) Source: geappliances.com Ada Appliances, Ada Compliant For People With Disabilities Ge Appliances Source: cabinetselect.com Kitchen Cabinet Sizes What Are Standard Dimensions Of Kitchen Cabinets? Source: kitchencabinetkings.com Guide To Kitchen Cabinet Sizes And Standard Dimensions Source: dimensions.com Kitchen Ranges Ovens Stoves Dimensions & Drawings Dimensions.Com Source: networx.com Kitchen Remodel Measurements, Facts, And Figures Networx Source: in.pinterest.com Countertop To Cabinet Height Pickpackgo Co Standard Kitchen Cabinet Sizes Thedrammehinstit In 2020 Kitchen Cabinet Sizes, Kitchen Cabinet Dimensions, Cabinet Dimensions Source: pinterest.com Range In Island + Tips For Making Sure It Is Exactly The Right Height Kitchen Remodel, Kitchen Countertops, Kitchen Inspirations Source: renomart.com.au Standard Dimensions For Australian Kitchens (Illustrated) Renomart Source: renomart.com.au The 39 Essential Rules Of Kitchen Design (Illustrated) Source: blog.bellinghamelectric.com Stove Sizes Typical Range Dimensions & Other Factors To Consider Source: kitchinsider.com The Complete Guide To Standard Kitchen Cabinet Dimensions Source: thisoldhouse.com Kitchen Island Ideas: Design Yours To Fit Your Needs This Old House Source: bestrangehoods.com Best News Best Range Hoods About Us Best > Best Hood Height Calculator Simplifies Range Hood Selection Source: lowes.com How To Replace An Over The Range Microwave Lowe'S Source: dimensions.com Kitchen Ranges Ovens Stoves Dimensions & Drawings Dimensions.Com Source: br.pinterest.com Range Hood Height Range Hood, Kitchen Range Hood, Kitchen Hoods Source: houzz.com Is There A Standard Headroom Clearance For Wood Hoods? Source: houzz.com Standard Height Of Cabinet Above Stove? Source: coolblue.nl What Is The Right Distance Between An Range Hood And A Stove? Coolblue Before 23:59, Delivered Tomorrow Source: euro-kitchen.com Euro Kitchen, Inc: What Is Floor To Ceiling Height? Source: houselogic.com Gas Range Buying Guide How To Buy A Gas Range Houselogic Source: dimensions.com Kitchen Ranges Ovens Stoves Dimensions & Drawings Dimensions.Com Source: kitchenstovenewotetsuki.blogspot.com Kitchen Stove New: Kitchen Stove Height Source: thoughtco.com Optimal Kitchen Upper Cabinet Height Source: ramsbottomkitchens.co.uk What Are The Standard Sizes Of Kitchen Cabinets & Appliances? Source: flippinwendy.design Don'T Mess This Up: How High To Hang A Microwave Flippinwendy Design Source: cabinetselect.com Kitchen Cabinet Sizes What Are Standard Dimensions Of Kitchen Cabinets? Source: kitchencabinetkings.com Guide To Kitchen Cabinet Sizes And Standard Dimensions Source: dimensions.com Ge Profile Slide In Double Oven Gas Range Dimensions & Drawings Dimensions.Com Source: thekitchn.com The Right Kitchen Counter Height & Other Key Kitchen Measurements Kitchn Source: gsw-usa.com Chinese Wok Ranges Gsw Source: renomart.com.au Standard Dimensions For Australian Kitchens (Illustrated) Renomart Source: thespruce.com Wall Oven Vs Range: What'S The Difference? Source: dimensions.com Kitchen Ranges Ovens Stoves Dimensions & Drawings Dimensions.Com
suggestion: standard height kitchen range hood
0 Response to "standard kitchen range height"
Posting Komentar